Проведено засідання архітектурно-містобудівної ради
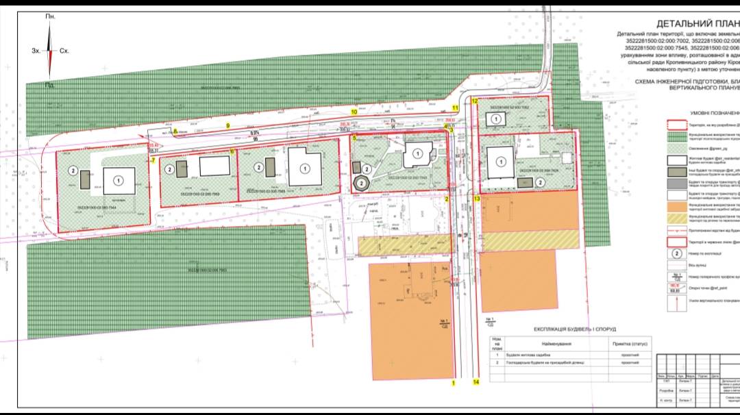
Проведено засідання архітектурно-містобудівної ради при відділі містобудування, архітектури, житлово-комунального господарства, благоустрою та цивільного захисту Дмитрівської сільської ради, на якому розглянуто проєкт містобудівної документації: «Детальний план території, що включає земельні ділянки з кадастровими номерами 3522281500:02:000:7002, 3522281500:02:006:7669, 3522281500:02:006:7668, 3522281500:02:000:7545, 3522281500:02:006:7626, 3522281500:02:000:7544 з урахуванням зони впливу, розташованої в адміністративних межах Дмитрівської сільської ради Кропивницького району Кіровоградської області (за межами населеного пункту) з метою уточнення параметрів забудови» розроблений ФОП Литвин Григорій Миколайович. За результатом розгляду, проєкт містобудівної документації рекомендовано до затвердження.



